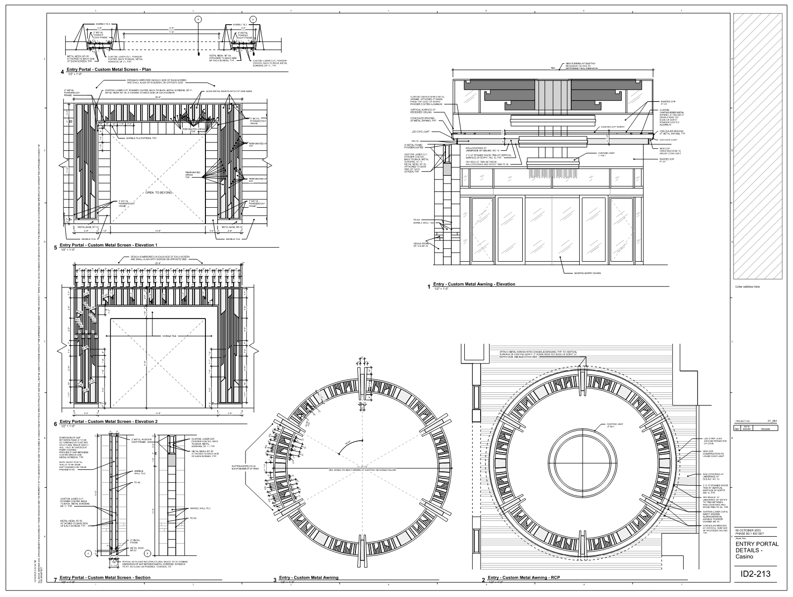
Custom Metal Screens, Awning & Large Scale Chandelier
Custom designed metal screen feature and large scale chandelier for new casino entry. Vertical screens to separate the new three-bay entry area, while the circular metal awning attaches to the vertical sides of an existing cylindrical ceiling recess. Designed multiple large scale chandeliers for this project in collaboration with various custom lighting studios.

Previous
Previous

Common Area Capital Improvements

Next
Next

Bay Area Full Building Renovation